ES
EN
Equipo
Proyectos
Contacto
Team
Projects
Contact
Tipo
Ubicacion
Todas
Comercial
Hoteles
Interior
Oficina
Recreacional
Residencial
Urbano
Vivienda Multi
Todas
Aruba
Barquisimeto
Costa Rica
España
Margarita
Panamá
República Dominicana
USA
Venezuela
Todas
Type
Location
All
Commercial
Hospitality
Interior
Office
Recreational
Residencial
urban
Housing
All
Aruba
Costa Rica
Spain
Panama
Dominican Republic
USA
Venezuela
All
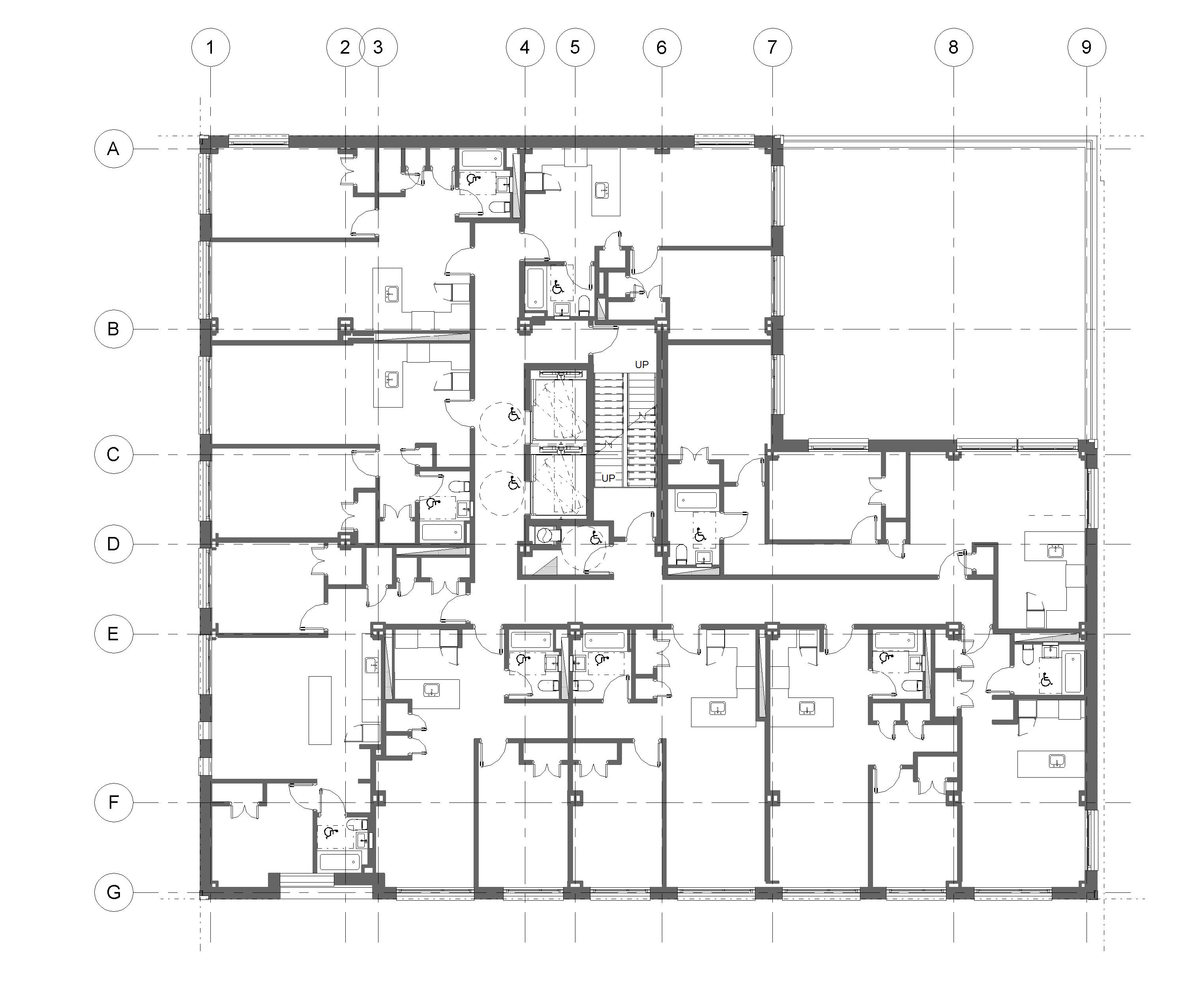
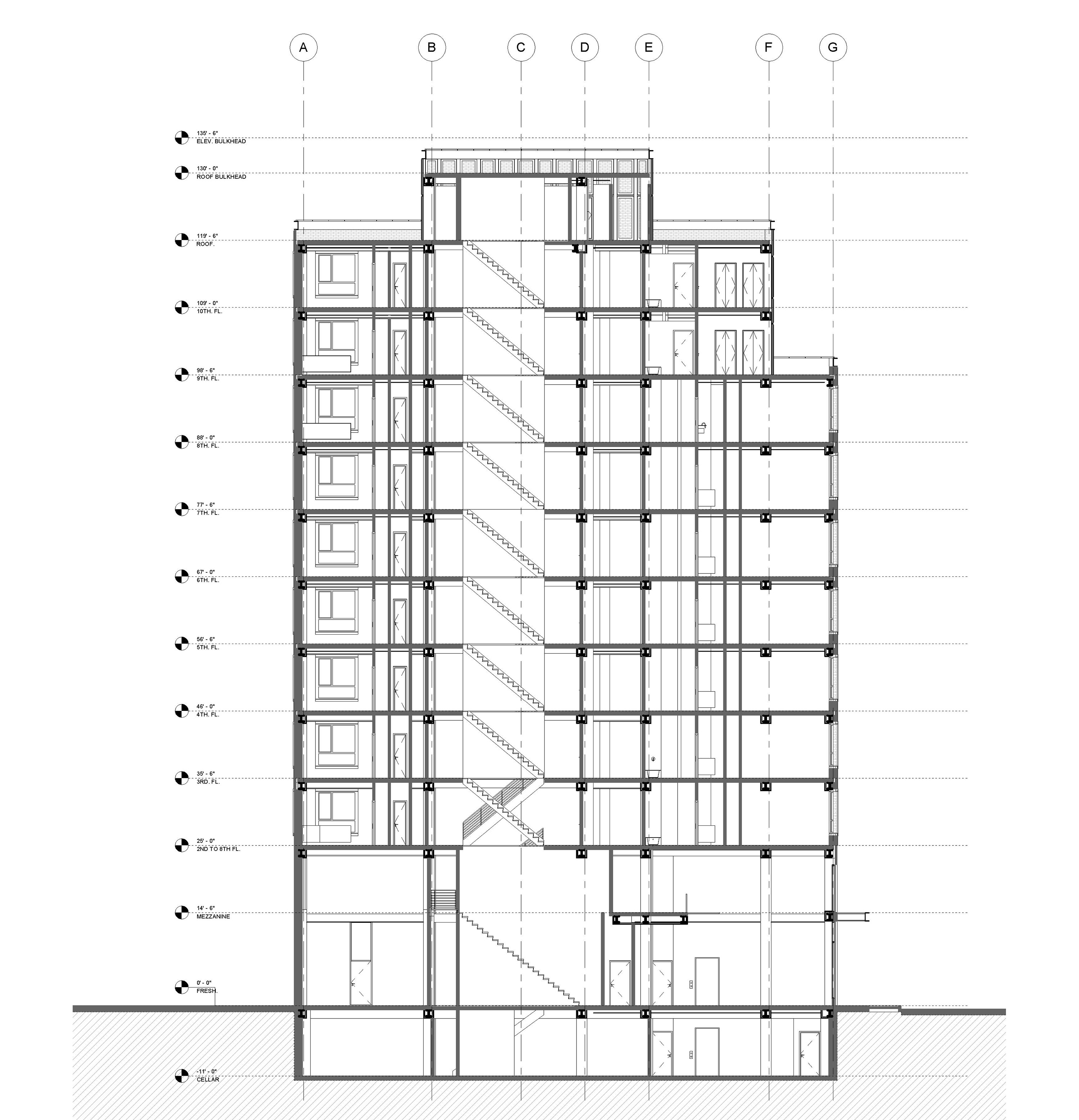
The Edgecombe
(2017, New York)